Hiện nay do đời sống được nâng cao nên nhu cầu xây dựng biệt thự ngày càng nhiều. Có những gia đình có diện tích rộng có thể làm biệt thự nhà vườn 1 tầng, nhưng cũng có gia đình vì diện tích không cho phép hoặc vì sở thích riêng nên thiết kế biệt thự 4 tầng. Có rất nhiều mẫu biệt thự 4 tầng đẹp theo nhiều phong cách khác nhau như biệt thự lâu đài, biệt thự mái thái, biệt thự bán cổ điển…
1. Mẫu thiết kế nhà biệt thự 4 tầng đẹp
Đối với thiết kế biệt thự thì 4 tầng được xem là cao nhất. Có những người thích biệt thự theo phong cách hiện đại, tối giản; nhưng cũng có những người uy quyền thích biệt thự lâu đài… Chính vì vậy, sẽ có rất nhiều lựa chọn nếu như bạn có nhu cầu xây dựng biệt thự 4 tầng.
Biệt thự 4 tầng mái thái thiên về sự đơn giản, trẻ trung, thường có màu chủ đạo là trắng – xám. Hệ thống cửa chính, cử sổ đều chuộng kính cường lực mang lại nhiều ánh sáng. Phần mái thái đặc trưng màu xám giúp điều hòa không khí trong nhà. Xung quanh nhà, tại các ban công đều trồng các chậu cây xanh, vừa hiện đại lại xnh – sạch – đẹp.

Biệt thự mái thái 4 tầng thiên về sự đơn giản nhưng vẫn sang trọng.
Khác với biệt thự mái thái chuộng vẻ đơn giản thì biệt thự lâu đài bề thế, hoành tráng và cầu kỳ hơn rất nhiều. Đây là một thiết kế biệt thự thích hợp cho những ai thích sự quyển lực, quý tộc. Từng chi tiết trong kiến trúc đều rất tinh xảo, phức tạp và xa hoa. Đặc biệt, gam màu chủ đạo của thiết kế này hầu hết là vàng cam và trắng – đậm chất Pháp cổ điển. Một đặc trưng khác là biệt thự lâu đài có thiết kế mái vòm độc đáo, tăng thêm sự nguy nga và thu hút.

Biệt thự lâu đài 4 tầng đầy uy quyền, bề thế.
Một số thiết kế biệt thự 4 tầng đẹp khác:


2. Bản vẽ thiết kế nhà biệt thự 4 tầng
Chắc chắn vẻ ngoài tổng thể của căn biệt thự là thứ mà ai cũng muốn được chiêm ngưỡng. Thế nhưng để hiểu hơn về căn biệt thự của mình, về nội thất, sự bố trí sắp xếp bên trong cũng là điều hết sức quan trọng. Có thể nói vẻ ngoài biệt thự hào nhoáng là dành cho những người bên ngoài nhưng sự bố trí bên trong mới là để phục vụ cuộc sống của những người bên trong.
Một bản vẽ thiết kế đầy đủ bao gồm: bản vẽ mặt bằng, bản vẽ mặt đứng, bản vẽ mặt cắt, bản vẽ chi tiết kiến trúc, bản vẽ móng nhà, bản vẽ mặt bằng cấp điện, bản vẽ mặt bằng cấp thoát nước. Dưới đây là những bản vẽ thiết kế nhà biệt thự 4 tầng đẹp mắt và chi tiết.

Bản vẽ biệt thự 4 tầng với 3 mặt cắt cơ bản.

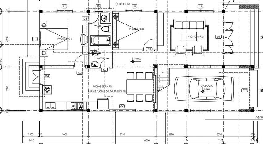
Bản vẽ công năng tầng 1 trong tổng thể thiết kế.

Một bản vẽ móng nhà cơ bản.
3. Thiết kế biệt thự 4 tầng 4 phòng ngủ đẹp
Hiện nay đa số các biệt thự đều có từ 3 phòng ngủ trở nên để đáp ứng nhu cầu sử dụng của các thành viên trong gia đình. Thiết kế biệt thự 4 phòng ngủ được xem là phổ biến nhất. Phòng ngủ thường được bố trí 1 phòng ở tầng 1 dành cho người lớn tuổi, không tiện đi lại cầu thang; 2 phòng ngủ lớn tại tầng 2 dành cho cặp vợ chồng và con cái; 1 phòng ngủ ở tầng 3 là dành cho khách nghỉ ngơi khi đến chơi nhà. Nội thất phòng ngủ phải có sự liên kết thống nhất với thiết kế chung của toàn biệt thự. Nếu là biệt thự hiện đại thì thiết kế nội thất phòng ngủ cũng theo xu hướng tối giản, đơn sắc, dùng các gam màu nóng chấm phá trên nền màu lạnh. Nhưng nếu là biệt thự lâu đài, thì phòng ngủ cũng phải mang nét quý tộc, hoàng gia với các đồ nội thất chạm trổ cầu kỳ, tinh tế, hệ thống rèm cửa hoa văn sang trọng…

Thiết kế tầng 2 bao gồm 2 phòng ngủ đón nhiều ánh sáng.

Phòng ngủ phong cách hiện đại, rất tinh tế.

Phòng ngủ mang phong cách châu Âu sang trọng và xa hoa.
Bất kể ai trong chúng ta cũng mơ ước được sống trong một ngôi biệt thự đẹp và sang trọng. Chính vì vậy, ngày càng nhiều mẫu biệt thự đẹp hơn, cải tiến hơn, sáng tạo hơn ra đời. Nếu bạn muốn được sở hữu một căn biệt thự độc đáo, nổi bật, mang đậm phong cách, sở thích cá nhân; muốn có những căn phòng với thiết kế nội thất đẹp và đặc biệt, không “đụng hàng” thì hãy liên hệ với chúng tôi qua số điện thoại 097 543 8686 hoặc gửi thư về địa chỉ email [email protected]. Đội ngũ kiến trúc sư của chúng tôi sẽ tư vấn cho bạn một cách chi tiết nhất về thiết kế, thi công biệt thự.